1/23 Crest Street, Mount Gravatt East, QLD 4122

Mount Gravatt East

Sold for $387,000

So much more on offer here!

" Under Contract"

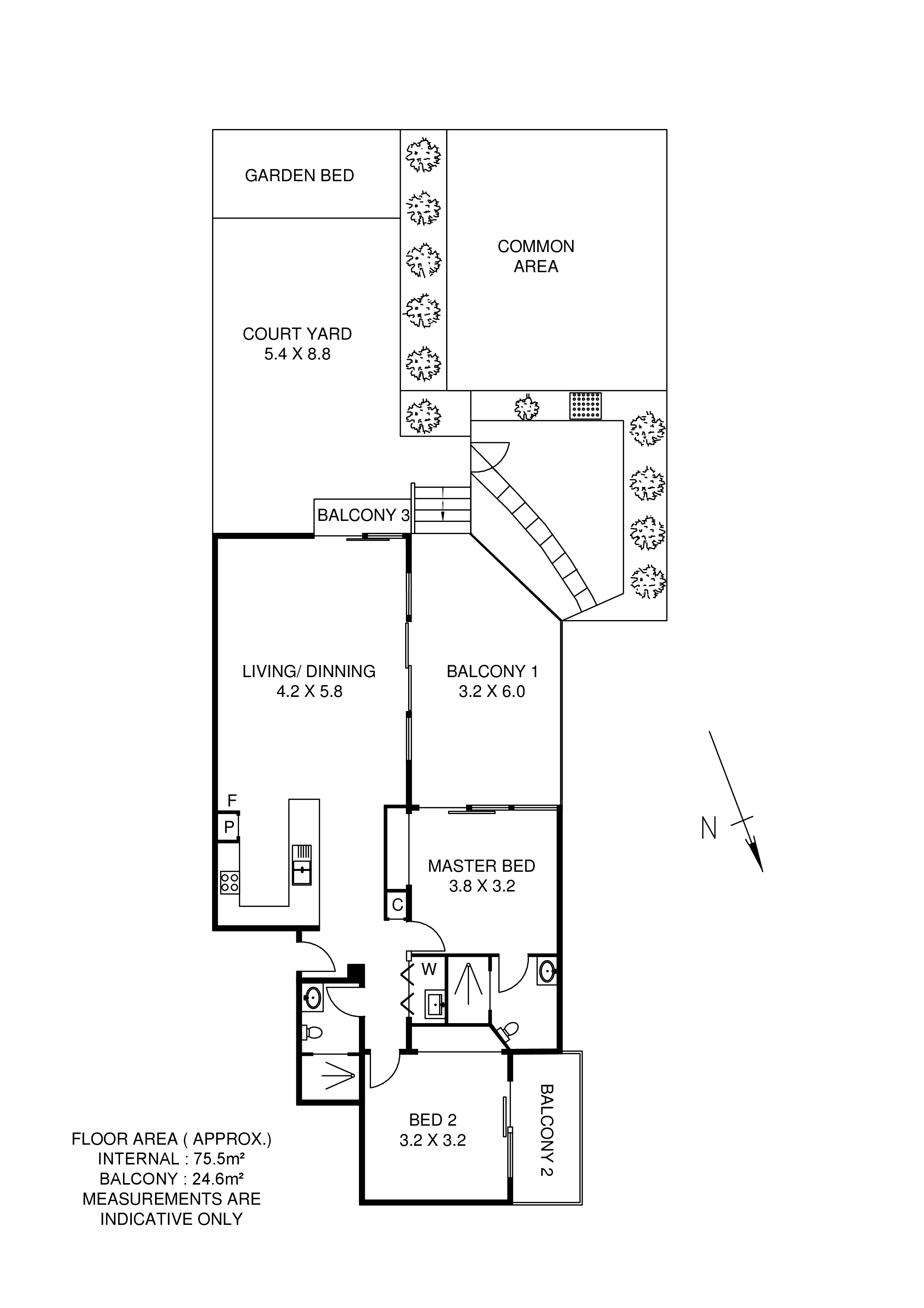
Delightfully different and privately positioned at the rear of the complex, enjoying a leafy outlook with your own secluded courtyard. Very generous in size and with a layout that is sure to please, this very neat and tidy home is ready to move straight into.
The large, main balcony overlooks the well-established gardens and is accessed off the main living areas and ensuited master bedroom, the second bedroom even has its own large, private balcony. Open plan living and air-conditioned throughout, makes for a very comfortable lifestyle.
Conveniently located with fast bus transport at the end of the street, Mt Gravatt Homemaker Centre just around the corner, along with Goodlife Gym and parklands only a short stroll away.
A great unit that truly has so much more to offer than most.

Quick Facts:
* 2 bedrooms, both air-conditioned and with built-in wardrobes
* 2 fresh and bright bathrooms, including an ensuite
* Single, secure car garaging and undercover visitor parking
* Well equipped kitchen with dishwasher
* Large, open plan and air-conditioned living area
* Private courtyard, well fenced and with established gardens
* Exclusive use garden shed for extra storage
* Internal laundry
* Extra external power points
* Only 13 years old and 8 units in the well cared for complex
* BCC Rates approx. $375.00 per quarter exc. water and sewage
* Body Corporate Fees $772.00 per quarter

Property Links

Location

Property Snapshot

Property Features

Property ID 19564045

Bedrooms 2

Bathrooms 2

Garage 1

Units in Complex 8

Air Conditioning Yes

Balcony Yes

Built In Robes Yes

Courtyard Yes

Dishwasher Yes

Fully Fenced Yes

Outdoor Ent Yes

Remote Garage Yes

Reverse Cycle Yes

Secure Parking Yes

Shed Yes

Split System Yes

Property Contact

Your Details
Your Enquiry
  1. Please describe how we can be of assistance to you.

  2.  

    Would you like to join our mail list?

Submit