33 Hathway Street, Mount Gravatt East, QLD 4122

Mount Gravatt East

Sold for $580,000

First Home Buyers - Dreams Do Come True with Nothing to Do.

*** Sold ***
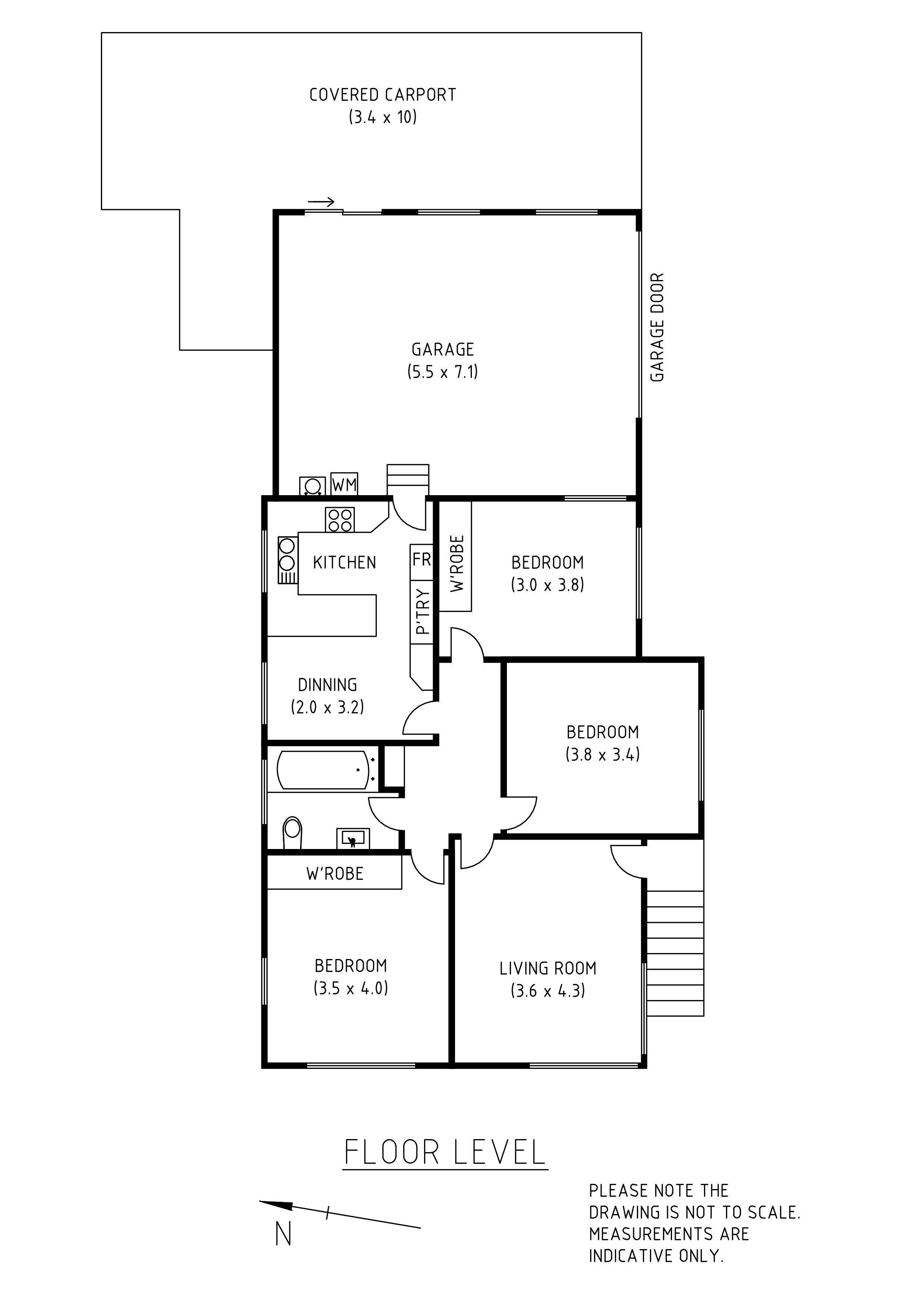
As soon as you enter this lovely house it feels like home. This property has been lovingly renovated, It's neutral colour palette, over-sized casement windows and polished wood floors enhancing its light and airy feel. On entering the cosy air conditioned lounge you know there is nothing here to do but just enjoy.
Featuring three good sized bedrooms, the main is built-in and air-conditioned. A modern bathroom with stylish tiling and shower over bath for relaxation. The functional eat in, near new kitchen offers plenty of storage and pantry space and features a cute barn back door.
This leads down three stairs into an enclosed king sized garage with good workshop area and laundry, alternatively it could be used as a games room. Large windows and sliding doors open onto a tandem carport or use as a covered pergola for outdoor gatherings. This flows out to the generous backyard with a good sized garden shed and fully fenced block. Easy side access from the driveway, so there is the ability here to house a caravan or boat.
This property is a solid, well built, post war, chamfer board home, which was fully re-wired and re-plumbed in 2010. It also boasts mains gas cooking and hot water system that was replaced in 2014.
This gently sloping 607m2 block, with Residential A zoning is in a very family friendly area. And within the highly sought after Mansfield High School catchment.

Submit all offers over $550,000

At a glance:
* Solid, hardwood home with iron roof
* Polished hardwood flooring throughout
* 3 good sized bedrooms - 2 built-in
* 607m2, fully fenced, Residential A land
* Fully rewired electrically
* 2 X split system, reverse cycle air conditioners
* Block dimensions 15.1 X 40.3 approx




Property Links

Location

Property Snapshot

Property Features

Property ID 16943245

Bedrooms 3

Bathrooms 1

Garage 1

Carports 2

Land Size 607 Square Mtr approx.

Air Conditioning Yes

Built In Robes Yes

Frontage 15.1 meters Approx.

Reverse Cycle Yes

Split System Yes

Property Contact

Your Details
Your Enquiry
  1. Please describe how we can be of assistance to you.

  2.  

    Would you like to join our mail list?

Submit