116 Point O'Halloran Road, Victoria Point, QLD 4165

Victoria Point

Sold for $498,500

The Perfect, Bayside Family Lifestyle.

Wake up to water views from your bedroom, only a few hundred meters to the water's edge and access to many kilometers of excellent, scenic walk ways and cycling paths. Great parklands, educational reserves, boat ramp, fishing spots and Thompsons Beach all within close proximity, the kids will love it!
Come home to a well-cared for, solid, brick and tile residence on a massive 772m2 flat block of land that is fully fenced and has wide side access for boats, trailers or campers.
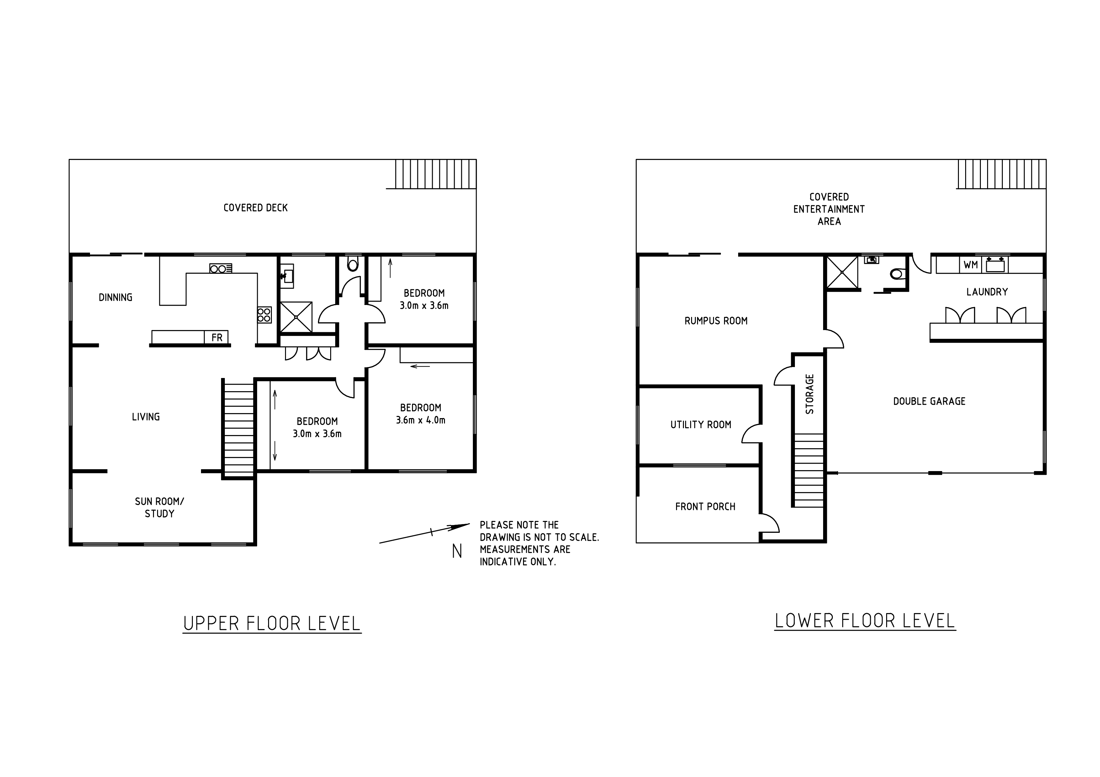
Lots of room for everyone with 3 built-in bedrooms upstairs, the large lounge and sunroom enjoys views, to the east, across the bay to Stradbroke Island and over to Mount Cotton in the South.
The well-equipped, Tassie oak kitchen, with loads of cupboard space looks out to the full length rear deck, ideal for entertaining friends and family.
Downstairs offers great family space with an open rumpus room, extra utility room and covered outdoor area. The second bathroom adjoins the large laundry and double garage.
Such a handy location with bus transport in the street, good schooling and child care facilities close by, along with the Sharks Football Club, YMCA Gym, Victoria Point shopping centre with cinema, cafes and many dining options just a stones throw away.

A perfect opportunity here for your family.

Snapshot information:
* 3 Built-in bedrooms + extra utility room downstairs
* 2 bathrooms - main up & 1 extra down
* Bay water views from 2 bedrooms and the living areas
* Tassie oak kitchen inc. dishwasher
* Ceiling fans throughout
* Lots of cupboards and storage throughout
* Stunning, extra wide, hardwood floorboards
* Roof void storage with pull down access ladder
* 3kw Solar system
* Insulated ceiling
* 2 x garden sheds
* 772m2, flat block of land, fully fenced + side access
* Block dimensions approx. 21.4m X 36m
* Council Rates $780.00 per quarter inc. water and sewage
* Local zoning Single Unit Dwelling, Urban Residential

Property Links

Location

Property Snapshot

Property Features

Property ID 16103935

Bedrooms 3

Bathrooms 2

Garage 2

Land Size 772 Square Mtr approx.

Built In Robes Yes

Deck Yes

Fully Fenced Yes

Outdoor Ent Yes

Remote Garage Yes

Rumpus Room Yes

Shed Yes

Property Contact

Your Details
Your Enquiry
  1. Please describe how we can be of assistance to you.

  2.  

    Would you like to join our mail list?

Submit