34/30 Meadowlands Road, Carina, QLD 4152

Carina

Sold

DECEASED ESTATE - MUST BE SOLD

This well presented low set villa is situated in arguably the best position within one of the most popular complexes in Carina. Located at the start of Meadowlands Road, the complex is just metres from major bus routes and the Easts Carina Leagues Club.

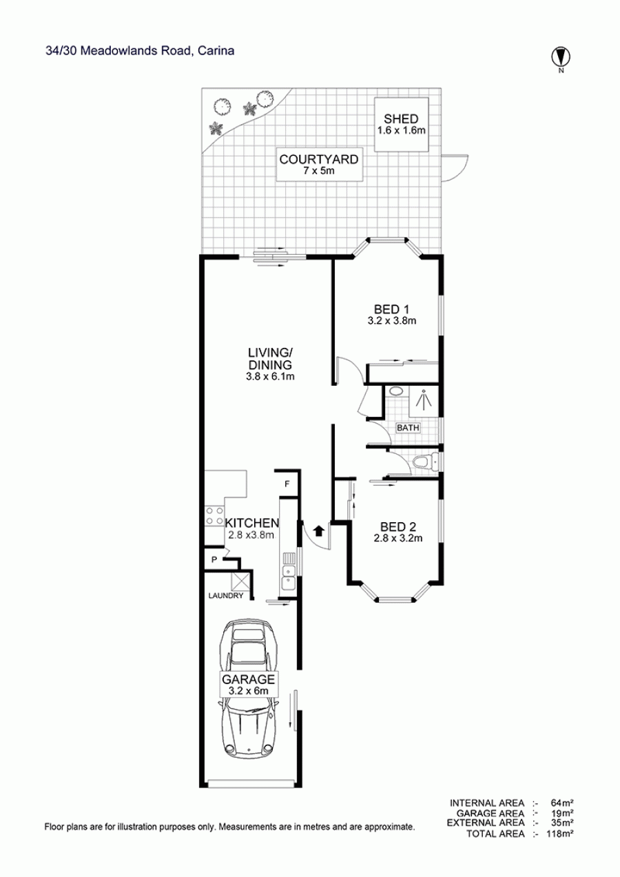
Situated at the rear of the complex, directly overlooking the parklands to the rear, the villa boasts Two Large Bedrooms with Built in Wardrobes, Combined Lounge Dining area linked with private, covered outdoor entertainment area, galley style kitchen, garage space very easily converted to extra living space and storage area, plus room to build a carport.

The complex boasts in ground pool, barbecue area, on site manager and low body corporate fees. It is well known for its social atmosphere and remains a complex that people want to live in. With a majority of low set villas in the complex, it has over the years, become a quiet place to live.

Contact David Moore for Inspection

Features List

* 2 Large bedrooms with Built In Wardrobes
* Lounge Dining Combined
* Galley Style Kitchen with Gas Cook Top and Electric Oven
* Internal Access to Laundry
* Covered Entertainment Area to Rear Courtyard
* Large Garden Shed
* Popular Complex
* Well Located for public transport and entertainment venues
* Low Body Corporate Fees

Property Links

Location

Property Snapshot

Property Features

Property ID 13896005

Bedrooms 2

Bathrooms 1

Garage 1

Air Conditioning Yes

Built In Robes Yes

Courtyard Yes

Fully Fenced Yes

In Ground Pool Yes

Shed Yes

Property Contact

Your Details
Your Enquiry
  1. Please describe how we can be of assistance to you.

  2.  

    Would you like to join our mail list?

Submit